Residential
Couple Apartment high-rise building
Concept Statement:
Integrate contemporary and Modern elegant, there is a line in the middle to combine the styles. Create dramatic feeling in the space through a combination of organic natural colors and materials with sleek design lines and light effects. Using the materials and textures to speak of a sophisticated interior atmosphere. I aim to design a Dark glamor, imagination, and curatorial vision. The interiors evoke the natural world transformed through artistic and technological with a raw, neutral palette, rich textures, and organic materials.
LOCATION: 1706 RITTENHOUSE


Designer of Influence Nicole Hollis




Project Material
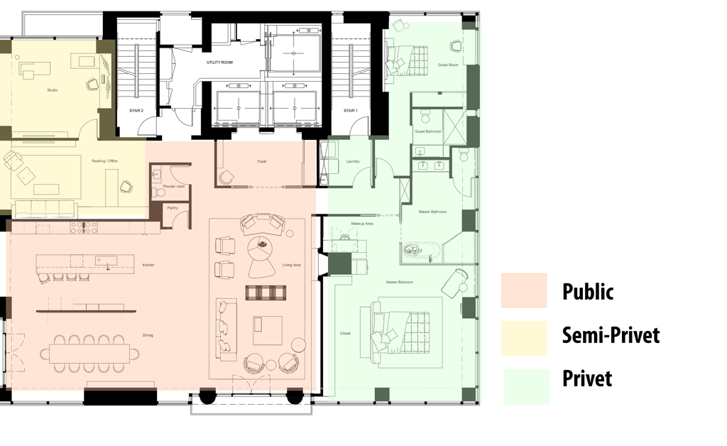
Space Planning


Living Area






Foyer


Kitchen








Dining Area








Home Studio






Reading / Office








Master Bedroom








