Community Center

High-rise building Arise Community Center will serve the youth and the elderly and help facilitate supportive relationships and connections. All immigrant culture is familiar with respect for the elderly, the participation of the elderly in the upbringing and guidance of young people, the young people in turn assist their elders.

Concept Statement:

The design aims to create an inviting experience that provokes a sense of warmth and cohesion through natural lights, linear accents, rich textures. The atmosphere creates an ethereal experience that evokes a sense of serenity and relishes. The visitors travel in the space through natural lights dramatic shadows to create an open, transparent, interactive, flexible, and welcoming environment that invites visitors to experience the uniqueness of ARISE and have a good time and create new relationships and maintain community residents’ connection. The earth’s warmth influences the design with organic patterns, textures, natural materials mixed with vibrant color and textiles, to create a spatial experience. The design aims to emphasize both Well principles as well as Universal Design principles to create a soothing and safe environment for all age groups.

LOCATION: 3161 Market ST

Concept Collage ​​​​​​​
Parti
Material & Inspiration Image
Bubble Diagram

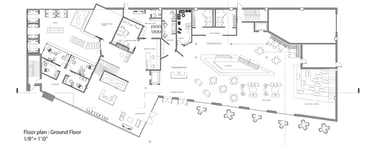
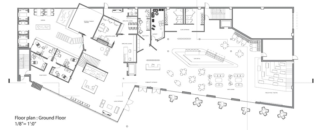
Floor Plan

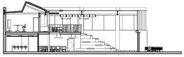
Section

Section A

Section B

Reception

Custom Furniture ​​​​​​​

COMMUNITY CAFE'

Custom Furniture ​​​​​​​

CAFE RETAIL

COMMUNITY LOUNGE